 |
Редукторы червячные 2Ч-80
Редукторы червячные одноступенчатые универсальные предназначены для изменения крутящих моментов и частоты вращения вала в качестве комплектующих в приводах машин, оборудования и механизмов.
УСЛОВИЯ ПРИМЕНЕНИЯ РЕДУКТОРОВ:
-
нагрузка постоянная и переменная, одного направления и реверсивная;
-
работа с периодическими остановками и длительная до 24 часов в сутки;
-
вращение валов в любую сторону;
-
частота вращения входного вала не более 1800 об/мин;
-
атмосфера типа I и II по ГОСТ 15150-69 при запыленности воздуха не более 10 мг/м3;
-
климатические исполнения У,Т для категорий размещения 1-3 и климатические исполнения УХЛ и О для категорий размещения 4 по ГОСТ 15150-69.




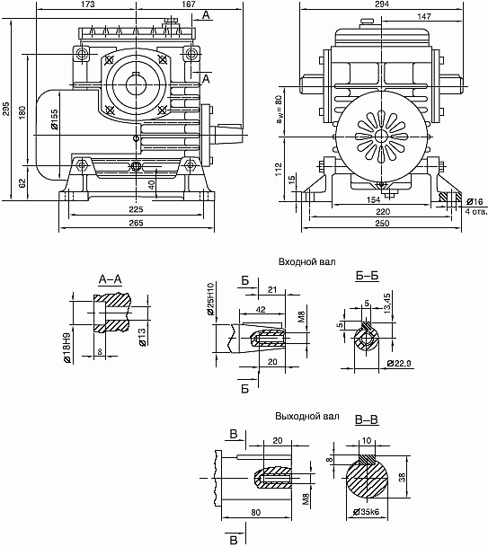
РИС1.
Габаритные и присоединительные размеры

РИС2.
Варианты сборки редукторов и расположения червяной пары

РИС3.
Варианты расположения лап
(1-без лап; 2-5 расположение лап по плоскостям)
ТЕХНИЧЕСКИЕ ХАРАКТЕРИСТИКИ
| Номи- нальные переда- точные числа Uном. |
Значения допустимых крутящих моментов на
выходном валу, к.п.д. и термической мощности при
частоте вращения входного вала n, об/мин. |
Допускаемая консольная нагрузка на вале , Н |
| 750 |
1000 |
1500 |
входном |
выходном |
| Мт, Н м |
h |
Nт, квт |
Мт, Н м |
h |
Nт, квт |
Мт, Н м |
h |
Nт, квт |
8,0 |
280 |
0,89 |
3,1 |
250 |
0,90 |
3,6 |
212 |
0,91 |
4,6 |
500 |
4000 |
10,0 |
250 |
0,88 |
2,2 |
224 |
0,89 |
2,6 |
190 |
0,90 |
3,4 |
12,5 |
250 |
0,86 |
1,8 |
230 |
0,87 |
2,2 |
195 |
0,89 |
2,8 |
16,0 |
280 |
0,83 |
1,7 |
250 |
0,85 |
1,9 |
218 |
0,86 |
2,5 |
20,0 |
243 |
0,79 |
1,2 |
224 |
0,81 |
1,5 |
195 |
0,84 |
1,9 |
25,0 |
243 |
0,78 |
1,0 |
224 |
0,79 |
1,2 |
195 |
0,83 |
1,5 |
31,5 |
300 |
0,72 |
1,1 |
280 |
0,75 |
1,0 |
250 |
0,78 |
1,7 |
40,0 |
243 |
0,67 |
0,7 |
218 |
0,71 |
0,9 |
195 |
0,73 |
1,1 |
50,0 |
243 |
0,65 |
0,6 |
230 |
0,66 |
0,8 |
206 |
0,71 |
0,9 |
63,0 |
224 |
0,60 |
0,5 |
212 |
0,62 |
0,6 |
190 |
0,64 |
0,8 |
80,0 |
200 |
0,55 |
0,4 |
190 |
0,58 |
0,5 |
175 |
0,61 |
0,6 |
ПРИМЕР УСЛОВНОГО ОБОЗНАЧЕНИЯ ПРИ ЗАКАЗЕ
Ч-80-40-52-1-2ВУЗ
-
Ч - червячный редуктор;
-
80 - межосевое расстояние
-
40 - номинальное передаточное число
-
52 - вариант сборки
-
1 - вариант по расположению червячной пары
-
2 - вариант по расположению лап
-
В - с вентилятором
-
УЗ - климатическое исполнение и категория размещения
Приводная техника (мотор-редукторы, преобразователи частоты и устройства плавного пуска) отправляется покупателю транспортной компанией. По всем вопросам обращаться в офис.
Мы всегда рады видеть у себя наших старых партнеров и ждем новых.
Доставка во все регионы России!
|
 |